======規格參數=====
干式變壓器溫控器技術指標
| 參數: | 指標 |
| 環境溫度: | -20℃~+55℃ |
| 環境濕度: | < 95% (25℃) |
| 工作電壓: | AC 220V (+10%,-15%) |
| 工作頻率: | 50Hz或60Hz(±2Hz) |
| 測量范圍: | -30.0℃~240.0℃ |
| 測量精度: | ±1%FS(溫控器0.5級,傳感器B級) |
| 分辨率: | 0.1℃ |
| 風機輸出容量: | 9A/250VAC |
| 控制輸出容量: | 5A/250VAC;5A/30VDC(阻性) |
| 溫控器功耗: | ≤8W |
| 生產標準: | JB/T7631-2016《變壓器用電子溫控器》行業標準 |
| 通過認證標準: | ISO9001:2016國際質量管理體系認證 |
| 通過試驗標準: | IEC61000-4:1995 國際標準 |
| 通過技術標準: | GB/T17626-2008《電磁兼容試驗和測量技術》標準 |
IB-M201干式變壓器溫控器型號選擇說明
| 型號 | 功能 |
| IB-M201D | 三相巡回顯示/最大值顯示;風機自動/手動啟停;超溫報警;超溫跳閘;故障報警;“黑匣子”功能; 風機定時激勵功能;模擬測試功能;數字補償功能;柜門開門報警功能。 |
| IB-M201E | 常規功能同IB-M201D型,增加三路或四路獨立的4~20mA模擬電流輸出。 |
| IB-M201F | 常規功能同IB-M201D型,增加RS485/232串行通訊功能。 |
| IB-M201G | 常規功能同IB-M201D型,增加一路機房環境溫度測量與控制。 |
| IB-M201I | 常規功能同IB-M201D型,增加一路變壓器鐵芯溫度測量與報警。 |
| IB-M201H | 常規功能同IB-M201D型,增加一路濕度測量與控制。 |
| IB-M201L | 常規功能同IB-M201D型,增加冷卻風機故障檢測與報警。 |
| IB-M201C | 常規功能同IB-M201D型,增加熱敏電阻PTC150或PTC130進行聯鎖控制。 |
備注:
1、如:IB-M201F,M代表小型壁掛式鐵殼溫控箱,F代表功能代號(通訊功能);
2、E、F、G、I為功能代碼,功能代碼可以組合,以下舉例說明:
溫控器型號:IB-M201EF,表示:溫控器為小型壁掛式溫控箱,其功能包括:常規功能、4~20mA電流輸出功能(E)和通訊功能(F)。
如果已經有E和F等2個功能,之后增加G、I功能只能選其一種做為增加功能,同時存在的功能代碼最多為3種,型號舉例說明:IB-M201EFG、IM-M201EFI。
3、若有其他特殊技術或功能要求,如以太網通訊、Profibus通訊、多通道溫度測量、光纖測溫、擴展觸點容量等,均可與我們聯系。
福建福州英諾電子科技有限公司干式變壓器溫控儀品牌型號齊全, 溫控器接線圖及說明書齊全,廠家直銷、價格合理,歡迎詢價!
======安裝尺寸=====
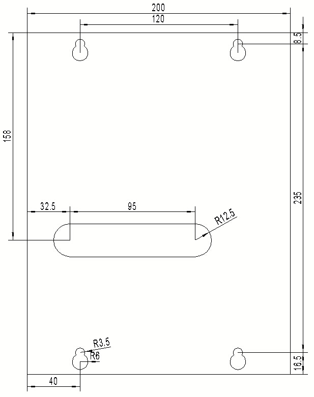
| 安裝尺寸: | 120mm × 235mm |
| 外觀尺寸: | 200mm × 260mm × 85mm |
IB-M201干式變壓器溫控器安裝尺寸圖

IB-M201系列干式變壓器溫控器
IB-M201D 溫控器端子接線圖(附加功能請來電咨詢)

注:若此接線圖與IB-M201D溫控器接線圖不一致時,以IB-M201D溫控器上接線圖為準。
標簽:干式變壓器溫控器
銷售微信